Claude Oakland Floorplan

The Architectural Legacy of Claude Oakland

Claude Oakland was one of the most innovative and influential architects in shaping mid-century modern residential design throughout the San Francisco Bay Area. Active primarily during the 1950s and 1960s, Oakland became known for creating homes that combined modernist principles, livability, and strong connections to nature — a style that continues to define California Modern architecture today.

Working closely with developer Joseph Eichler, Claude Oakland helped advance the evolution of Eichler homes beyond early modern models. His designs introduced greater spatial variety, more refined proportions, and highly livable layouts that appealed to growing Bay Area families. Oakland’s work elevated tract housing into thoughtfully designed architecture, making modern homes accessible without sacrificing quality or creativity.

Today, Claude Oakland floorplans remain among the most admired and sought-after in Bay Area mid-century communities.

What Makes Claude Oakland Floorplans Unique?

Claude Oakland floorplans are recognized for their balance of architectural sophistication and everyday comfort. His designs refined many of the features that define classic mid-century modern homes:

  • Expansive Open Living Areas
    Oakland emphasized large, flowing living and dining spaces that feel spacious, bright, and connected — ideal for entertaining and family life.

  • Strong Indoor-Outdoor Relationships
    His floorplans often feature walls of glass, sliding doors, and private patios or atriums that blur the line between inside and outside living.

  • Central Atriums and Courtyards
    Many Claude Oakland homes include signature atriums that provide privacy, light, and a peaceful outdoor retreat within the home.

  • Post-and-Beam Construction
    By using post-and-beam framing, Oakland minimized interior load-bearing walls, allowing for flexible layouts and dramatic ceiling lines.

  • Thoughtful Bedroom Wings
    Private areas are typically separated from public spaces, offering quiet, comfortable living zones well-suited to modern lifestyles.

These elements create homes that feel open, calm, and naturally integrated with their surroundings — a defining characteristic of Oakland’s architectural philosophy.

Claude Oakland’s Influence in the Bay Area

Claude Oakland’s work is deeply embedded in some of the Bay Area’s most celebrated mid-century modern neighborhoods. His floorplans appear in many iconic Eichler tracts across Silicon Valley and surrounding communities, including:

  • Palo Alto & Menlo Park
    Oakland contributed to multiple developments where atrium homes and glass-walled living spaces became signature features of the neighborhood.

  • Sunnyvale & Cupertino
    His designs helped shape modern suburban communities that balanced density with openness and green space.

  • San Jose & South Bay Tracts
    Oakland’s adaptable floorplans were ideal for larger developments, providing visual consistency while allowing for variety and customization.

Through these communities, Claude Oakland helped establish a regional identity built on light, openness, and human-centered design. His homes continue to influence architects, developers, and renovators working in the Bay Area today.

Why Homebuyers Love Claude Oakland Floorplans

Homes designed by Claude Oakland remain highly desirable because they offer:

  • Abundant natural light and ventilation

  • Spacious, flexible interiors

  • Authentic mid-century modern character

  • Excellent renovation potential

  • Strong long-term value in Bay Area real estate markets

Whether restored to their original condition or thoughtfully updated, Claude Oakland homes consistently deliver comfort, beauty, and architectural integrity.

The Lasting Appeal of Claude Oakland’s Designs

Claude Oakland believed that modern homes should be both artful and practical. His work demonstrates how thoughtful design can enhance everyday life — creating spaces that feel relaxed, functional, and deeply connected to their environment.

By refining the Eichler model and pushing mid-century architecture forward, Oakland helped define what many people now recognize as the ideal California modern home. His influence can still be seen in contemporary residential design, sustainable architecture, and mid-mod restorations throughout the Bay Area.

For buyers, collectors, and enthusiasts, understanding Claude Oakland’s floorplans is essential to appreciating the true legacy of Bay Area mid-century modern homes.

Black and white architectural floor plan of a house with four bedrooms, two bathrooms, a garage, and various living areas. Exterior sketch shows a single-story house with a car parked outside, surrounded by trees and a fence.

Claude Oakland Plan CC-174

Floor plan of a house with four bedrooms, two baths, multi-purpose room, living and dining room, loggia, atrium, kitchen, pantry, hobby/laundry room, garage, and a terrace.

Claude Oakland Plan LA-374

Architectural drawing of a two-story house with a front view showing a car parked in the garage, a deck at the back, and surrounding trees and fencing. The floor plan of the house displays the layout of rooms across the first and second floors, including bedrooms, living and dining areas, kitchen, bathrooms, garage, and outdoor decks.

Claude Oakland Plan SM-4

Architectural floor plan of a residential house featuring four bedrooms, two bathrooms, a multi-purpose room, a living and dining area, kitchen, gallery, terrace, carport, and garage.

Claude Oakland Plan CC-184

Floor plan of a house with four bedrooms, two bathrooms, a multi-purpose room, living and dining area, patio, loggia, garage, storage, and an exterior elevation view.

Claude Oakland Plan OC-574

Architectural floor plan of a house with four bedrooms, two bathrooms, a multi-purpose room, garage, living and dining areas, and outdoor patio and garden spaces.

Claude Oakland Plan SJ-164

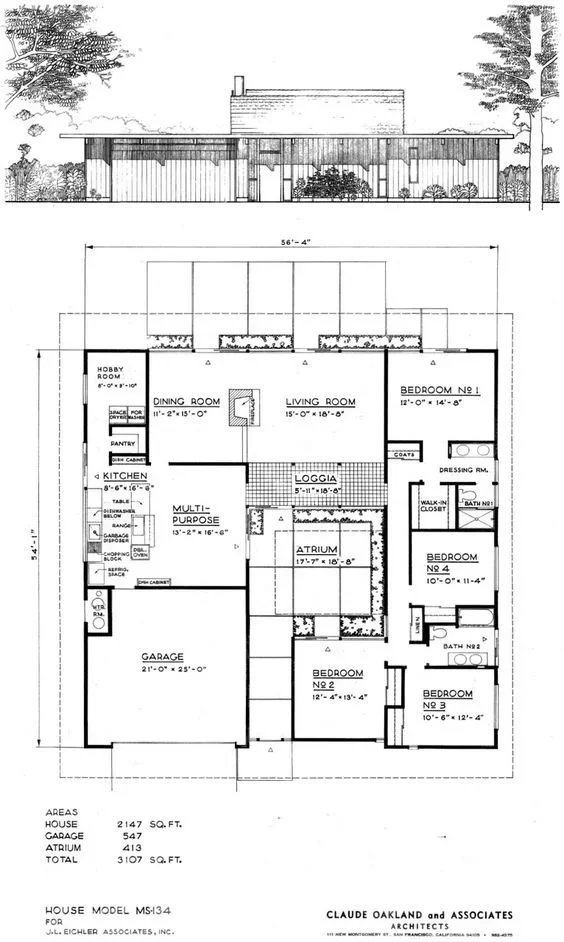
Architectural blueprint of a house floor plan with dimensions, including bedrooms, living room, dining room, kitchen, garage, atrium, loggia, and bathrooms.

Claude Oakland Plan MS-134

Floorplans

Black and white architectural drawing of a house plan, showing the front exterior with trees and a driveway, and the interior layout including bedrooms, living room, kitchen, garage, and gallery.

Claude Oakland Plan CC-13

Floor plan of a single-story house with three bedrooms, a garage, living and dining area, kitchen, patio, and courtyard.

Claude Oakland Plan FC-23

Architectural drawing of a house floor plan with labeled rooms, and an exterior view showing the house with a carport, yard, trees, and a fence.

Claude Oakland Plan CC-294

Line drawing of a house plan with labeled rooms, including five bedrooms, three bathrooms, a multi-purpose room, an atrium, storage, garage, kitchen, dining room, living room, and a terrace. The house is designed by architect Claude Oakland.

Claude Oakland Plan HPO-15

Floor plan of a house with four bedrooms, two bathrooms, multi-purpose room, workshop, living and dining area, kitchen, garage, and carport, along with a front elevation drawing.

Claude Oakland Plan OC-584

Architectural blueprint of a house, showing rear and front elevation views, with detailed floor plan including rooms such as kitchen, dining room, living room, bedrooms, bathrooms, garage, and utility areas. Dimensions and labels provided for each area.

Claude Oakland House Plan L234

Architectural blueprint of a single-story house with a front yard, driveway, and trees. The floor plan shows four bedrooms, two bathrooms, living and dining rooms, kitchen, laundry, garage, atrium, loggia, and multi-purpose room.

Claude Oakland Plan S404-C

Architectural drawing of a two-story house with floor plans. The first floor includes a garage, storage, kitchen, living and dining area, and entryway. The second floor features three bedrooms, two bathrooms, and balconies with one bedroom having access to a balcony. The house has multiple balconies and a patio, with an exterior elevation showing a large house with a garage, car, chimney, and landscaping.

Claude Oakland Plan SM-3