Eichler & Mid-Century Modern Floor Plans

Floor plans are at the heart of mid-century modern and Eichler homes. More than simple layouts, they reflect a philosophy of living—one centered on openness, light, flexibility, and a seamless connection between indoors and outdoors. Understanding these floor plans is essential for appreciating the architecture, evaluating a home’s potential, and choosing a design that truly fits your lifestyle.

This page explores the most common Eichler and mid-century modern floor plan concepts found throughout Silicon Valley and the greater Bay Area, along with guidance on how to interpret and use them when buying, selling, or renovating a modern home.

The Philosophy Behind Eichler Floor Plans

Joseph Eichler believed good design should be accessible and livable. His floor plans were intentionally innovative for their time, breaking away from compartmentalized layouts in favor of openness and flow.

Core principles behind Eichler floor plans include:

  • Open-concept living areas that combine kitchen, dining, and living spaces

  • Minimal interior walls, enabled by post-and-beam construction

  • Strong visual sightlines across the home and into outdoor spaces

  • Central atriums or courtyards in many models

  • Separation of public and private spaces, often with bedroom wings

  • Flexible rooms that adapt to changing lifestyles

These ideas continue to feel contemporary decades later.

Common Eichler Floor Plan Types

While Eichler homes share consistent design language, they were built in a variety of layouts to suit different lot sizes, family needs, and neighborhoods.

Atrium Models

One of the most iconic Eichler designs, atrium floor plans feature a private, open-air courtyard at the center or entrance of the home. The atrium serves as both a visual focal point and a source of natural light.

Gallery Models

Gallery-style Eichlers include a long interior corridor—often with clerestory windows—that connects living spaces to bedroom wings. These homes emphasize linear flow and privacy.

Double-Gabled Plans

Common in later Eichler developments, double-gabled homes offer larger living areas, vaulted ceilings, and expansive glass walls facing the backyard.

Ranch-Style Modern Plans

Found throughout Sunnyvale, San Jose, and Mountain View, these single-story layouts blend traditional ranch proportions with modernist detailing and open interiors.

Split-Level & Hillside Plans

In areas with varied topography, Eichler-inspired and mid-century modern homes use split-level designs to follow the land while maintaining openness and visual continuity.

Understanding Original Eichler Models

Many Eichler homes were built using standardized models, each with distinct characteristics. Knowing a home’s original model can help buyers and sellers understand:

  • Intended room use and proportions

  • Original circulation patterns

  • Where modifications have occurred

  • How renovations can be done without compromising design integrity

Original floor plan knowledge is especially valuable when restoring or sensitively updating an Eichler home.

Floor Plans and Indoor–Outdoor Living

Eichler and mid-century modern floor plans are intentionally designed around outdoor space. Sliding glass walls, courtyards, and rear patios are not accessories—they are integral parts of the layout.

In many homes, outdoor areas function as extensions of the living room, dining room, or primary bedroom, reinforcing the California modernist lifestyle.

Using Floor Plans When Buying a Mid-Century Home

For buyers, floor plans provide critical insight beyond square footage:

  • How light moves through the home during the day

  • Whether private spaces are adequately separated

  • How flexible rooms can adapt to home offices or guest use

  • How original design aligns with modern living needs

Reviewing multiple Eichler floor plans can help buyers quickly identify which layouts feel intuitive—and which do not.

Floor Plans and Renovation Potential

Floor plans also guide renovation strategy. Because Eichlers rely on post-and-beam construction, walls often cannot be moved without understanding structural loads. Conversely, many layouts allow thoughtful reconfiguration without altering the home’s architectural essence.

Understanding the original plan helps homeowners:

  • Preserve architectural integrity

  • Avoid costly structural mistakes

  • Plan additions or updates that feel intentional

  • Balance modernization with authenticity

The Boyenga Team Floor Plan Archives

The Boyenga Team maintains access to an extensive archive of classic Eichler and mid-century modern floor plans across Palo Alto, Sunnyvale, Cupertino, Los Altos, Mountain View, and surrounding communities.

These resources allow clients to:

  • Identify original Eichler models

  • Compare layouts across neighborhoods

  • Understand value differences tied to floor plan desirability

  • Confidently evaluate both original and remodeled homes

This level of insight gives buyers clarity and helps sellers present their homes with accuracy and credibility.

Explore Eichler Floor Plans with Confidence

Whether you are searching for the right Eichler layout, preparing to sell a modern home, or planning a thoughtful renovation, understanding floor plans is essential.

Partner with the Boyenga Team to access expert guidance, architectural insight, and curated Eichler floor plan resources—so you can make informed decisions rooted in design, history, and long-term value.

Anshen + Allen

Two men in suits, one standing and one sitting, beside an architectural model of a modern building complex, with cityscape artwork on the wall behind them.

Left to Right: Robert ‘Bob’ Anshen, William Stephan Allen

Anshen & Allen were key figures in shaping mid-century modern residential architecture, particularly through their collaboration with Joseph Eichler during the post-war era. Their designs helped define the Eichler home, emphasizing open floor plans, low-profile rooflines, and expansive glass that blurred the line between indoor and outdoor living.

By combining architectural innovation with efficient, repeatable design, Anshen & Allen made modernist principles accessible at scale. Today, their homes remain some of the most recognizable and influential examples of mid-century modern housing in the Bay Area.

Anshen & Allen Floor Plans

Floor plan of a house with four bedrooms, two bathrooms, a multi-purpose room, an atrium, a hobby room, a kitchen, a living room, a dining room, a garage, and various closets.

Eichler Floor Plan LA-81

A detailed floor plan of a house from 1951, including living room, kitchen, bedrooms, bathrooms, garage, and service areas.

Anshen + Allen Original Eichler 'Atrium’ Model

Eichler Floor Plan Architects

Jones & Emmons

Three men in suits smiling and posing together in an indoor setting.

Left to Right: A. Quincy Jones, Joseph Eichler, Frederick Emmons

Jones & Emmons were influential architects in the development of mid-century modern residential design, best known for their work on Eichler homes throughout the Bay Area. Their designs emphasized clean lines, efficient layouts, and a strong relationship between indoor spaces and private outdoor areas.

Through thoughtful planning and refined modernist principles, Jones & Emmons helped shape many of the tract neighborhoods that define Eichler communities today. Their homes remain highly regarded for their livability, architectural clarity, and lasting contribution to mid-century modern housing.

Jones & Emmons Floor Plans

Architectural blueprint of a single-story house with four bedrooms, two bathrooms, a living room, dining room, kitchen, multipurpose room, garage, and carport. Includes front elevation view and landscape elements.
Blueprint floor plan of a house with four bedrooms, two bathrooms, a multi-purpose room, kitchen, patios, carport, and garage.

Contact Us and Begin Your Mid Mod Journey Today!

Boyenga Team + Compass Eric & Janelle Boyenga 📞 Call / Text : 408-373-1660 📧 Email : Eichlers@Boyenga.com 🌐 www.BoyengaTeam.com / www.EichlerHomesForSale.com DRE #01254724 / #01254725

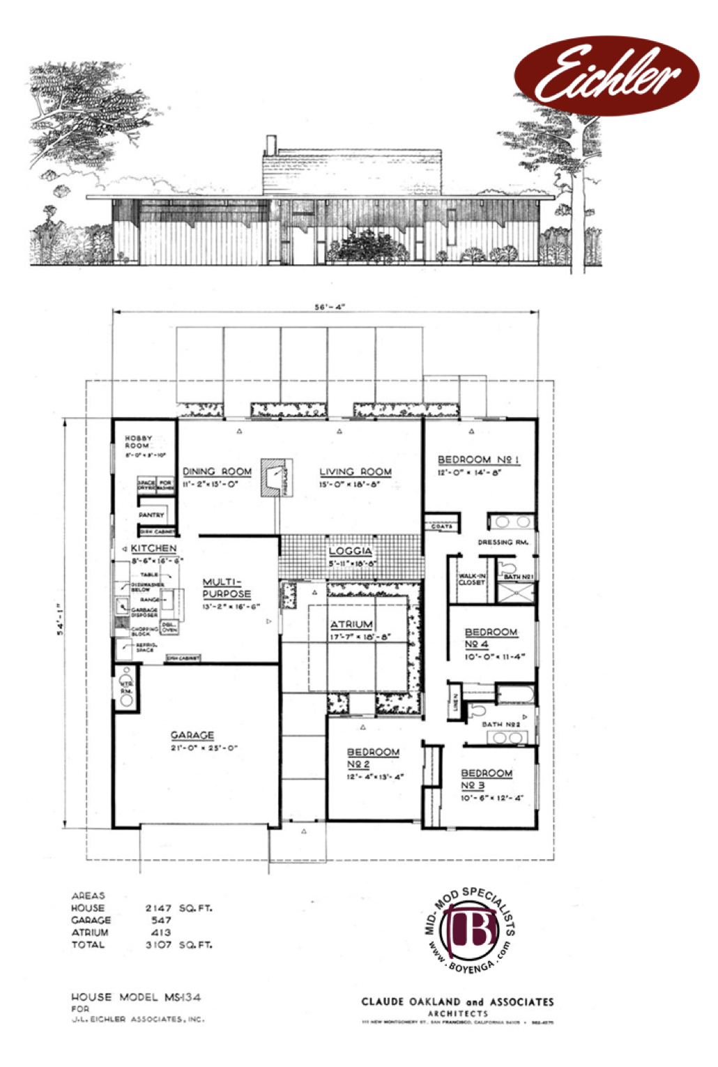
Claude Oakland

Two men in suits and glasses looking at a large blueprint or architectural plan.

Left to Right: Claude Oakland, Joseph Eichler

Claude Oakland was a prominent architect of mid-century modern homes in Northern California, widely recognized for his expressive designs within Eichler developments. His work is known for bold rooflines, dramatic use of glass, and interiors that emphasized volume, light, and a strong indoor–outdoor connection.

Oakland’s homes pushed the visual language of mid-century modern architecture while remaining highly livable, helping elevate the architectural identity of many Eichler neighborhoods. Today, his designs are among the most sought-after examples of Bay Area mid-century modern residential architecture.

Claude Oakland Floor Plans

Architectural drawing of a house floor plan and front elevation, with the Eichler logo in the top right corner.
A detailed architectural floor plan and front elevation of a house, showing various rooms, garage, carport, and outdoor landscape.